Kontakt: 031 593 01401/ 511 34 44(Pon. - Pet. 8:00 - 16:00)

image

Opis izdelka:

Konstrukcija:
Varjena jeklena konstrukcija iz pravokotne cevi trapezne oblike.
Površina / barva:
Vsi jekleni deli cinkani ali prašno barvani v standardnih RAL odtenkih.
Streha:
Kaljeno laminirano steklo.
Hrbtne in stranske stene:
Kaljeno steklo, prosojno.
Odvajanje vode:
Voda odteka po skritih vzdelanih žlebovih v nosilcih konstrukcije in izteče skozi odprtine tik nad tlemi.
Snežna obremenitev:
1,50 kN/m2
Pritrjevanje:
Vijačenje na betonski temelj, AB ploščo po načrtih proizvajalca.
Dodatno:
Nasloni ali stojala za kolesa.

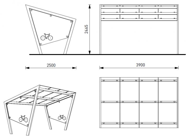
Tehnični podatki

izvedba strehe ravna
izvedba enostranska ali dvostranska
strešna kritina steklena alitrapezna pločevina
dolžina strehe enojna 3.900 mm, dvojna 7.740 mm
globina strehe 2.500 mm
skupna višina 2.465 mm
površina jeklenih delov cinkano in prašno barvano
snežna obremenitev 1,50 kN/m2